На границе Елабужского района установят стелу за 6,9 млн рублей

На границе Елабужского района установят стелу за 6,9 млн рублей скриншот документов

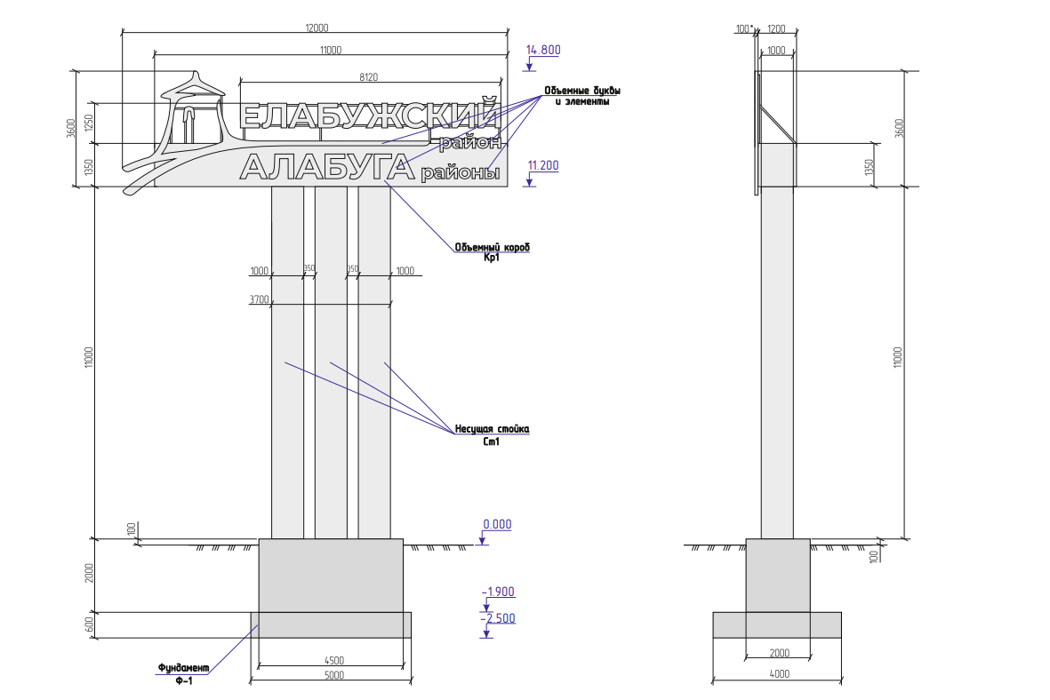
Изготовление и установки стелы на границе Елабужского района обойдется в 6,9 млн рублей. Тендер опубликован на сайте госзакупок. 

В качестве материала обшивки металлических конструкций необходимо использовать алюминиевую композитную плиту. На стеле разместится надпись «Елабужский район, Алабуга районы». Будут установлены светильники направленного света, которые будут обеспечивать полное освещение конструкции.

Согласно документам, работы должны быть завершены до 30 ноября 2025 года.

Ранее «РТ» писала, что на въезде в Азимово Апастовского района торжественно открыта стела в честь ветерана Великой Отечественной войны Габбаса Хафизова. В этот же день в деревне также установили памятную табличку на доме, где проживал участник спецоперации Марсель Салахов

Не пропустите самое интересное в Max и Telegram-канале газеты «Республика Татарстан»

Больше статей и новостей в «Дзен»

Елабужский район новости Татарстана стела
Вы уже оставили реакцию
Новости Еще новости